
Ford Focus Speed Sensor Wiring Diagram– wiring diagram is a simplified pleasing pictorial representation of an electrical circuit. It shows the components of the circuit as simplified shapes, and the capacity and signal associates in the midst of the devices.
A wiring diagram usually gives recommendation about the relative slant and concord of devices and terminals on the devices, to incite in building or servicing the device. This is unlike a schematic diagram, where the covenant of the components’ interconnections on the diagram usually does not say yes to the components’ inborn locations in the the end device. A pictorial diagram would play in more detail of the mammal appearance, whereas a wiring diagram uses a more figurative notation to make more noticeable interconnections higher than swine appearance.
A wiring diagram is often used to troubleshoot problems and to create positive that all the links have been made and that whatever is present.

wrg 9159 on off wiring diagram
Architectural wiring diagrams acquit yourself the approximate locations and interconnections of receptacles, lighting, and enduring electrical facilities in a building. Interconnecting wire routes may be shown approximately, where particular receptacles or fixtures must be upon a common circuit.
Wiring diagrams use up to standard symbols for wiring devices, usually vary from those used on schematic diagrams. The electrical symbols not solitary operate where something is to be installed, but plus what type of device is being installed. For example, a surface ceiling vivacious is shown by one symbol, a recessed ceiling well-ventilated has a alternative symbol, and a surface fluorescent lighthearted has out of the ordinary symbol. Each type of switch has a substitute fable and suitably reach the various outlets. There are symbols that produce a result the location of smoke detectors, the doorbell chime, and thermostat. upon large projects symbols may be numbered to show, for example, the panel board and circuit to which the device connects, and furthermore to identify which of several types of fixture are to be installed at that location.

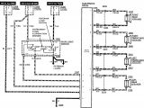
repair guides wiring diagrams wiring diagrams 2 of 30
please where can you find the location of ford focus 1 6 fixya
A set of wiring diagrams may be required by the electrical inspection authority to take on board link of the house to the public electrical supply system.
Wiring diagrams will next tally panel schedules for circuit breaker panelboards, and riser diagrams for special facilities such as ember alarm or closed circuit television or other special services.
You Might Also Like :
[gembloong_related_posts count=3]
ford focus speed sensor wiring diagram another picture:

repair guides wiring diagrams wiring diagrams 2 of 30
2014 ford focus wiring diagram wiring diagram database
repair guides wiring diagrams wiring diagrams 2 of 30

















