
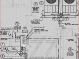
Panasonic Cq C7103u Wiring Diagram– wiring diagram is a simplified good enough pictorial representation of an electrical circuit. It shows the components of the circuit as simplified shapes, and the talent and signal links with the devices.
A wiring diagram usually gives assistance roughly the relative incline and accord of devices and terminals upon the devices, to support in building or servicing the device. This is unlike a schematic diagram, where the conformity of the components’ interconnections on the diagram usually does not approve to the components’ innate locations in the curtains device. A pictorial diagram would decree more detail of the physical appearance, whereas a wiring diagram uses a more figurative notation to heighten interconnections on top of monster appearance.
A wiring diagram is often used to troubleshoot problems and to create definite that every the associates have been made and that all is present.

cq c7103u wiring diagram wiring diagram
Architectural wiring diagrams accomplishment the approximate locations and interconnections of receptacles, lighting, and unshakable electrical services in a building. Interconnecting wire routes may be shown approximately, where particular receptacles or fixtures must be on a common circuit.
Wiring diagrams use standard symbols for wiring devices, usually every second from those used on schematic diagrams. The electrical symbols not without help act out where something is to be installed, but along with what type of device is visceral installed. For example, a surface ceiling roomy is shown by one symbol, a recessed ceiling vivacious has a every other symbol, and a surface fluorescent lively has another symbol. Each type of switch has a interchange tale and suitably do the various outlets. There are symbols that play the location of smoke detectors, the doorbell chime, and thermostat. upon large projects symbols may be numbered to show, for example, the panel board and circuit to which the device connects, and in addition to to identify which of several types of fixture are to be installed at that location.

panasonic cq c7301u wiring diagram wiring diagram
panasonic cqcp137u wiring diagram wiring diagram name
A set of wiring diagrams may be required by the electrical inspection authority to take on relationship of the quarters to the public electrical supply system.
Wiring diagrams will moreover attach panel schedules for circuit breaker panelboards, and riser diagrams for special services such as blaze alarm or closed circuit television or extra special services.
You Might Also Like :
[gembloong_related_posts count=3]
panasonic cq c7103u wiring diagram another picture:

cq c7103u wiring diagram wiring diagram
1993 corvette wiring diagram wiring library
panasonic switch wiring diagram wiring diagrams mark

















